Stitcher Head Assembly
Deluxe
Deluxe

Stitcher Head Assembly

Part Number: G8HD24A
The G8 Head features a side-feed design, eliminating the need for a Swivel, dramatically increasing the reliability of this head and can be used on virtually any stitcher or collator which uses Deluxe Stitcher, ISP/Interlake, 26 Heads or Hohner 52/8, and 48/5 Heads.
Sale Price $2,120.00 /EACH
EACH

Specifications

Technical Data
Max Capacity: 2 sheets to 5/16" 
Crown Width: 1/2"
Wire Sizes: 24 gauge round
Minimum Center-to-Center: 2-3/64"
Speed: 20,000 stitches / hour
Machines: Rosback

 

Documents

 
G8 Operators Manual

Bonnet Sub-Assembly (Figure 1)

Click part numbers in the diagram for product pages

 

Bonnet Sub-Assembly (Figure 2)

Click part numbers in the diagram for product pages

 

Feed Lever and Feed Gear Assemblies

Click part numbers in the diagram for product pages

 

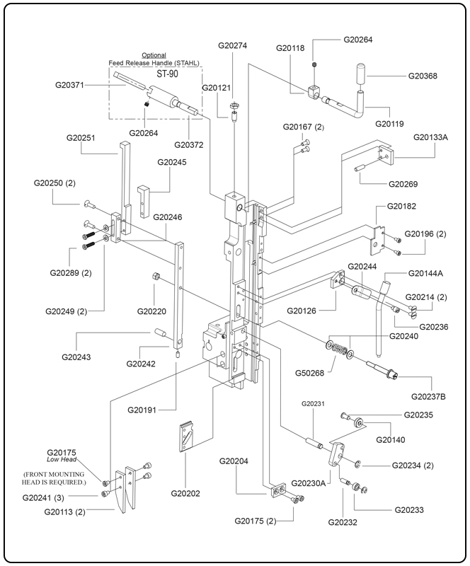
Driving and Feed Slide Assemblies

Click part numbers in the diagram for product pages

 

Bender Bar and Wire Holder Assemblies

Click part numbers in the diagram for product pages

 

Cutter Box Assembly

Click part numbers in the diagram for product pages

 

Wire Guide Bracket, Spring and Clincher Plate

Click part numbers in the diagram for product pages

 

Recently Viewed

List of suggested products: Recently Viewed.